Negozio in affitto

Ardea, Via Venezia - Nuova Florida
€ 1.800 / mese
1 locale 1 locale
280 Mq 280 Mq
2 bagni 2 bagni

Negozio in affitto

Ardea, Via Venezia - Nuova Florida

Descrizione annuncio

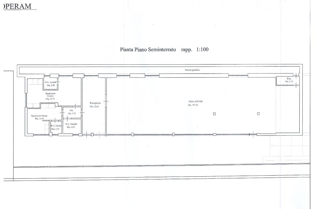
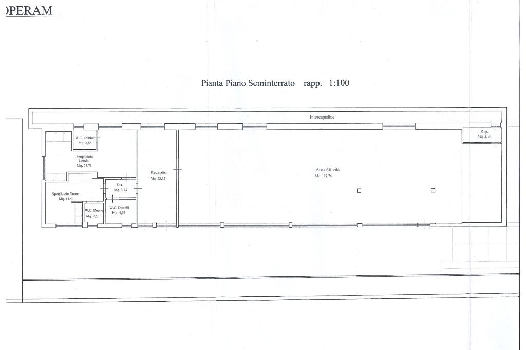
Proponiamo in locazione un locale commerciale situato all’interno del prestigioso centro sportivo di Nuova Florida, ad Ardea (RM). Gli spazi, versatili e di ampia metratura, si prestano a molteplici attività professionali e garantiscono un contesto altamente visibile, frequentato e ben servito.

La posizione centrale, a ridosso di Via Venezia, assicura facilità di accesso e ottima riconoscibilità, grazie anche alla presenza di numerose attività consolidate nelle immediate vicinanze, tra cui ristoranti, palestre e supermercati.

Caratteristiche principali

Locale commerciale di ampia metratura

Ingresso indipendente

Reception dedicata

Servizi igienici con docce

Giardino esclusivo

Riscaldamento radiante a pavimento

Parcheggi interni

Locali parzialmente arredati

Inseriti in un contesto commerciale attivo e consolidato

Punti di forza

Posizione strategica nel cuore di Nuova Florida, facilmente raggiungibile e ben visibile

Contesto ad alto passaggio grazie alla presenza del centro sportivo e delle attività limitrofe

Versatilità degli spazi, ideali per studi professionali, attività sportive, servizi alla persona, centri medici, showroom e molto altro

Parcheggi interni, un plus fondamentale per clienti e collaboratori

TECNOCASA IMPRESA POMEZIA

Ci occupiamo di: IMMOBILI INDUSTRIALI, COMMERCIALI e ARTIGIANALI.

C'è chi si occupa di tutto.

E poi c'è, chi, da oltre 30 anni si occupa solo d'impresa.


Non affidarti al caso, AFFIDATI AI NOSTRI PROFESSIONISTI.

Affiliato: SERVIZI DI IMPRESA SRL
Via del Mare, 33 - POMEZIA (RM)

Mostra tutto

Caratteristiche

Rif.:
61195076
Piano:
Basso di 2
Totale piani:
2
Posti auto:
5
Condizionamento:
Autonomo
Ascensore:
No
Mostra tutto
Prezzo Prezzo
€ 1.800 / mese
Spese annue Spese annue
€ 0

Altre caratteristiche

Descrizione dei locali
Bagno antibagno

Classe Energetica

F
F
F
F
F
F
F
F
F
EP globale non rinnovabile:
220.00 kW h/m² anno
EP globale rinnovabile:
220.00 kW h/m² anno
EP invernale del fabbricato:
EP estiva del fabbricato:
Anno di costruzione:
2000
Riscaldamento:
Autonomo
Tipo impianto:
A radiatori
Tipo alimentazione:
Aria

Ti interessa visionare l'immobile?

Fissa un appuntamento  Fissa un appuntamento

Richiedi informazioni

Clicca su Leggi per aprire l'informativa
* Questi campi sono obbligatori
Affiliato
Servizi Di Impresa Srl
Via del Mare, 33 00071 Pomezia (RM)

Il nostro staff


  • Gianluca Casonato
    Responsabile

  • Danilo Casonato
    Affiliato

  • Gabriele Leggieri
    Collaboratore

  • Anne Marie Paljetak
    Coordinatrice

  • William Rozzi
    Collaboratore
Via del Mare, 33 00071 Pomezia (RM)
Zona: Pomezia-Ardea-Roma Sud Ardeatina-Laurentina-Pontina
Mostra su mappa
Orari: mattino 9.00 - 13.00 pomeriggio 15.30 - 19.30; sabato 9.00 - 13.00
Affiliato
Servizi Di Impresa Srl
Via del Mare, 33 00071 Pomezia (RM)

2026 Tecnocasa Franchising S.p.A. - P. IVA 08365160152 - Via Monte Bianco 60/A 20089 Rozzano (MI). Ogni agenzia ha un proprio titolare ed è autonoma. Privacy policy | Policy utilizzo | Cookie policy