Capannone in affitto

Pomezia, Via laurentina
€ 11.100 / mese
1 locale 1 locale
2224 Mq 2224 Mq
4 bagni 4 bagni

Capannone in affitto

Pomezia, Via laurentina

Descrizione annuncio

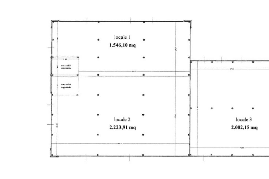
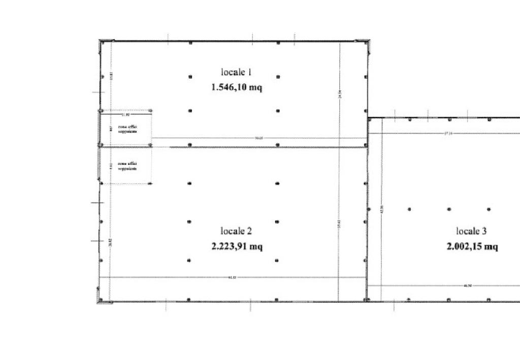
Capannone Industriale 2.224 mq – Via Laurentina 114, Pomezia – Ampia Corte Privata e Doppio Accesso Carrabile


Proponiamo in locazione un capannone industriale di 2.224 mq situato in Via Laurentina 114 a Pomezia, in posizione strategica e facilmente raggiungibile dalle principali arterie di collegamento.
L’immobile dispone di una corte esterna privata di circa 900 mq, ideale per movimentazione mezzi, stoccaggio esterno o parcheggio.

La struttura è dotata di due accessi carrabili, che agevolano le operazioni logistiche e consentono un flusso efficiente di entrata e uscita.
All’interno sono presenti 4 servizi igienici, inclusi quelli per persone con disabilità.

Caratteristiche principali


Superficie interna: 2.224 mq

Destinazione d’uso: Industriale

Area esterna privata: circa 900 mq

Due accessi carrabili per mezzi pesanti sul fronte oltre 3 ingressi carrai laterali

4 bagni, inclusi servizi per disabili

Struttura adatta a produzione, logistica, deposito o attività industriali

Possibilità di personalizzazione degli spazi

Buona accessibilità per carico/scarico

Contesto industriale consolidato

Punti di forza


Eccellente accessibilità logistica grazie agli ingressi carrabili frontali e laterali

Ampia corte privata, ideale per manovra mezzi, parcheggio o attività complementari

Spazi interni molto ampi e versatili, adatti a diverse tipologie di attività industriali

Servizi igienici completi, inclusi quelli per persone con disabilità

Posizione strategica lungo la Via Laurentina, con collegamenti rapidi verso Roma, Pontina e GRA.

IMMOBILI INDUSTRIALI - COMMERCIALI - ARTIGIANALI


Non affidarti al caso, AFFIDATI AI NOSTRI PROFESSIONISTI
La nostra specializzazione e la nostra pluriennale esperienza sono a tua disposizione.


Affiliato: SERVIZI DI IMPRESA SRL
Via del Mare, 33 - POMEZIA (RM)

Mostra tutto

Caratteristiche

Rif.:
61174433
Piano:
1 di 1 (Piano terra)
Posti auto:
10
Condizionamento:
Assente
Ascensore:
No
Riscaldamento:
Assente
Mostra tutto
Prezzo Prezzo
€ 11.100 / mese
Spese annue Spese annue
€ 0

Altre caratteristiche

Descrizione dei locali
Bagno antibagno

Classe Energetica

Questo immobile è esente da classe energetica
Anno di costruzione:
2006
Riscaldamento:
Assente

Ti interessa visionare l'immobile?

Fissa un appuntamento  Fissa un appuntamento

Richiedi informazioni

Clicca su Leggi per aprire l'informativa
* Questi campi sono obbligatori
Affiliato
Servizi Di Impresa Srl
Via del Mare, 33 00071 Pomezia (RM)

Il nostro staff


  • Gianluca Casonato
    Responsabile

  • Danilo Casonato
    Affiliato

  • Gabriele Leggieri
    Collaboratore

  • Anne Marie Paljetak
    Coordinatrice

  • William Rozzi
    Collaboratore
Via del Mare, 33 00071 Pomezia (RM)
Zona: Pomezia-Ardea-Roma Sud Ardeatina-Laurentina-Pontina
Mostra su mappa
Orari: mattino 9.00 - 13.00 pomeriggio 15.30 - 19.30; sabato 9.00 - 13.00
Affiliato
Servizi Di Impresa Srl
Via del Mare, 33 00071 Pomezia (RM)

2026 Tecnocasa Franchising S.p.A. - P. IVA 08365160152 - Via Monte Bianco 60/A 20089 Rozzano (MI). Ogni agenzia ha un proprio titolare ed è autonoma. Privacy policy | Policy utilizzo | Cookie policy