Negozio in affitto

Pomezia, Via Naro
€ 2.700 / mese
2 locali 2 locali
325 Mq 325 Mq
4 bagni 4 bagni

Negozio in affitto

Pomezia, Via Naro

Descrizione annuncio

Proponiamo in locazione ampio locale commerciale categoria C/1, situato nella zona industriale di Pomezia, in posizione strategica su Via Naro, a pochi minuti dallo svincolo della . Pontina. L’immobile è ideale per attività di vendita diretta, showroom, esposizione o servizi professionali, grazie alla sua eccellente visibilità, accessibilità e versatilità.

L’immobile, precedentemente adibito a tavola calda, è dotato di canna fumaria, rendendolo ideale anche per attività di ristorazione, gastronomia, catering o laboratorio alimentare.

Descrizione dell’immobile

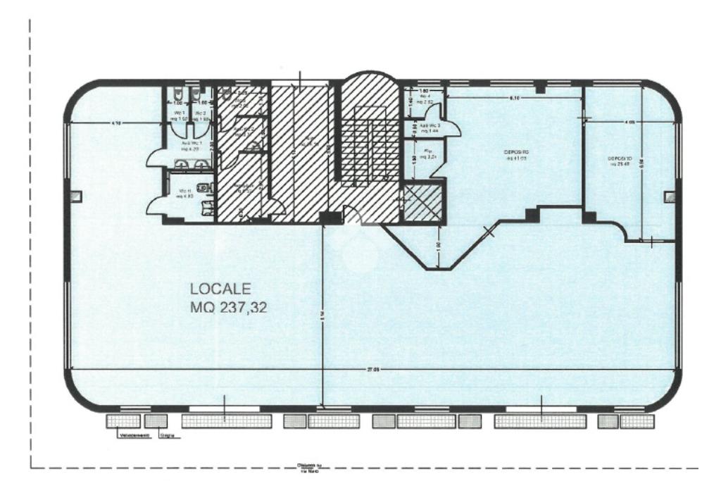
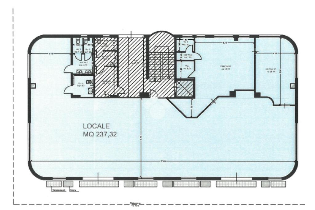
Superficie totale: circa 325 mqCategoria catastale: C/1 – Locale commercialeVetrine: 5 ampie vetrine automatizzate, che garantiscono ottima esposizione e luminosità naturale


Distribuzione interna:Ampio open space centrale, perfetto per esposizione e vendita1 ufficio operativo riservato2 locali magazzino per stoccaggio merci2 ripostigli funzionali3 servizi igienici con antibagno, ideali per personale e clientiCanna fumaria installata

Area esterna: pertinenza e parcheggio condominiale con oltre 20 posti auto scoperti

Punti di forza

Posizione strategica: vicinanza alla . Pontina e alle principali arterie stradaliAlta visibilità: fronte strada con passaggio veicolare costanteAmbienti luminosi e flessibili: layout adatto a molteplici configurazioni commercialiAccesso facilitato: ingresso comodo per clienti e fornitoriPronto all’uso: immobile in ottime condizioni, disponibile da subitoParcheggio dedicato: comodità per clienti e dipendentiCanna fumaria presente: ideale per attività food

Questa soluzione rappresenta un’opportunità ideale per aziende, showroom, negozi specializzati, laboratorio/ristorazione o attività che necessitano di spazi ampi e ben distribuiti in una zona ad alta densità commerciale e industriale.

IMMOBILI INDUSTRIALI - COMMERCIALI - ARTIGIANALI

Non affidarti al caso, AFFIDATI AI NOSTRI PROFESSIONISTI

La nostra specializzazione e la nostra pluriennale esperienza sono a tua disposizione.

Affiliato: SERVIZI DI IMPRESA SRL
Via del Mare, 33 - POMEZIA (RM)

Mostra tutto

Nelle vicinanze

Trasporto pubblico Trasporto pubblico
Trasporto pubblico
1,2 Km
Via del Mare
Via del Mare
1,3 Km
Ricariche auto elettriche Ricariche auto elettriche
Eneldrive Via dei Castelli Romani
1,1 Km
Pomezia Via Roma | EnelX
1,4 Km
Pomezia Cavour | EnelX
1,7 Km
Pomezia Varrone
2,0 Km
Eneldrive Municipio di Pomezia
2,0 Km
Scuole Scuole
Scuola Primaria "Trilussa"
1,9 Km
Scuola Secondaria di I grado "Publio Virgilio Marone"
2,0 Km
Istituto di Istruzione Superiore "Nicolò Copernico"
2,2 Km
Scuole
2,6 Km
Scuola dell'Infanzia Gianni Rodari
2,7 Km
Farmacia Farmacia
Farmacia
1,5 Km
Farmacia
2,0 Km
Ospedali Ospedali
Casa di cura Sant'Anna
1,6 Km
Supermercati Supermercati
Iper Dem
420 m
IPERDEM
1,2 Km
Lidl
1,3 Km
EuroSpin
1,9 Km
Sigma
2,1 Km
Negozi Negozi
Upim
500 m
Calliope
520 m
Mercatino Pomezia
1,0 Km
Panificio Tosoni e Tosoni Drink & Soul
1,5 Km
Pasticceria Tosoni
1,6 Km
Bar Bar
Bar
1,3 Km
Ristoranti Ristoranti
Ristorante La Sughereta
330 m
Imperivm
440 m
Sushiko
450 m
Itasushi Wok Yang
770 m
Ristobar Feronia
1,2 Km
Mostra tutto

Caratteristiche

Rif.:
61135905
Piano:
Ammezzato di 5
Totale piani:
5
Posti auto:
20
Condizionamento:
Autonomo
Ascensore:
No
Mostra tutto
Prezzo Prezzo
€ 2.700 / mese

Altre caratteristiche

Descrizione dei locali
Bagno Con Finestra

Classe Energetica

G
G
G
G
G
G
G
G
G
EP invernale del fabbricato:
EP estiva del fabbricato:
Anno di costruzione:
1990
Riscaldamento:
Autonomo
Tipo impianto:
Ad aria
Tipo alimentazione:
Aria

Ti interessa visionare l'immobile?

Fissa un appuntamento  Fissa un appuntamento

Richiedi informazioni

Clicca su Leggi per aprire l'informativa
* Questi campi sono obbligatori
Affiliato
Servizi Di Impresa Srl
Via del Mare, 33 00071 Pomezia (RM)

Il nostro staff


  • Gianluca Casonato
    Responsabile

  • Danilo Casonato
    Affiliato

  • Gabriele Leggieri
    Collaboratore

  • Anne Marie Paljetak
    Coordinatrice

  • William Rozzi
    Collaboratore
Via del Mare, 33 00071 Pomezia (RM)
Zona: Pomezia-Ardea-Roma Sud Ardeatina-Laurentina-Pontina
Mostra su mappa
Orari: mattino 9.00 - 13.00 pomeriggio 15.30 - 19.30; sabato 9.00 - 13.00
Affiliato
Servizi Di Impresa Srl
Via del Mare, 33 00071 Pomezia (RM)

2025 Tecnocasa Franchising S.p.A. - P. IVA 08365160152 - Via Monte Bianco 60/A 20089 Rozzano (MI). Ogni agenzia ha un proprio titolare ed è autonoma. Privacy policy | Policy utilizzo | Cookie policy